DIRECTLOT.RU   Вход   Регистрация
Товары Услуги Сообщество Возможности chipmaker.ru  
Все сообщения "нужна услуга"Металлообработка

Нужна услуга: Профрезеровать плоскости на чугунной детали.

Лот 1759596, размещён в доступ:
Желают получить услугу в:   Москва или область
Доброго всем настроения!

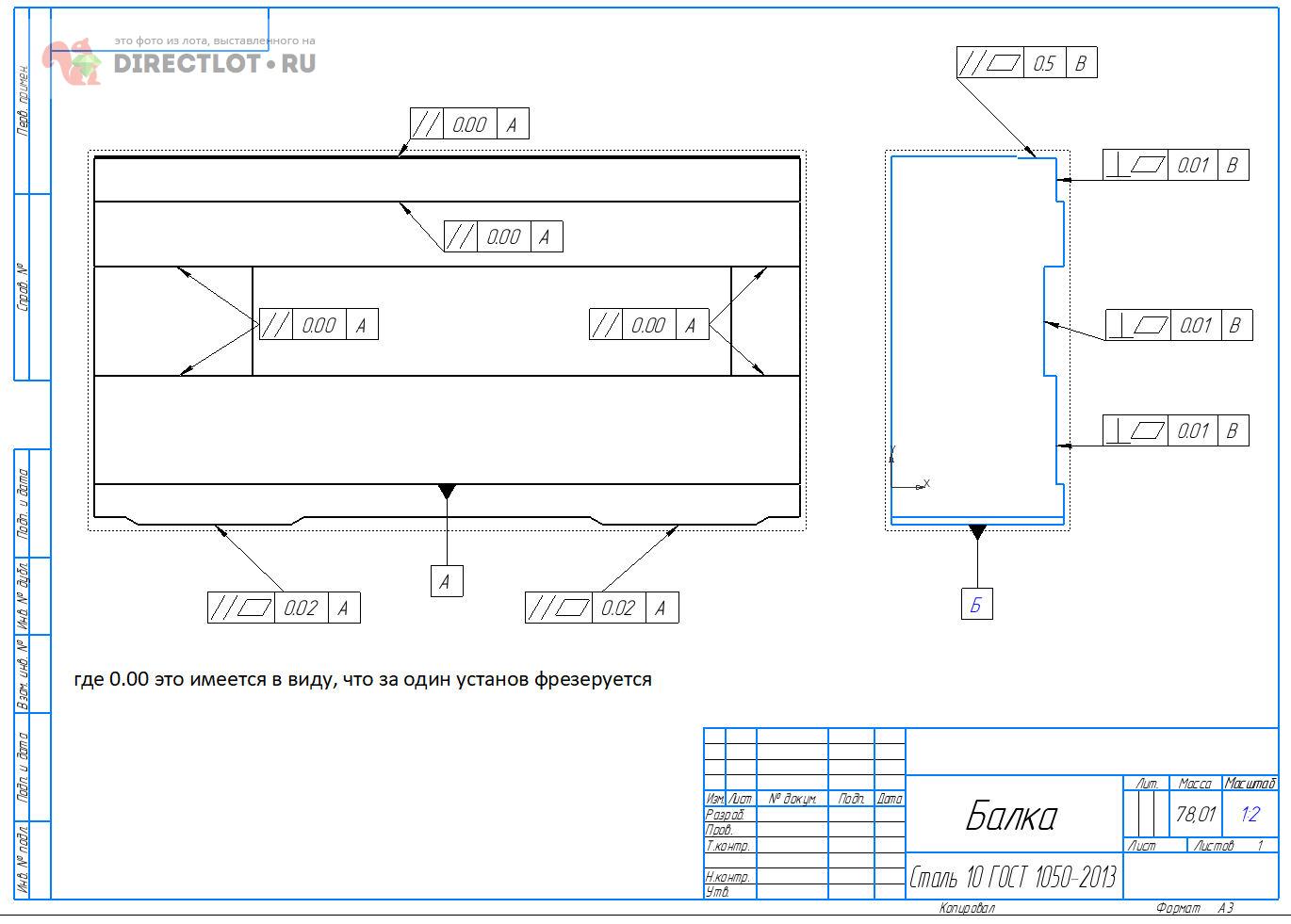
Требуется фрезеровка чугунной (СЧ20) балки небольшого портального фрезерного станка (см. фото), где необходима, высокая точность обработки. Цветом выделены плоскости, которые нужно будет профрезеровать. Сём металла там небольшой 1-2-3мм максимум. Габариты детали 454х232х111. Основной вопрос в точности.

Чертёж — это моё дилетантское видение желаемых допусков в данной ситуации. Им хотел показать важность соблюдения взаимной перпендикулярности и параллельности «базовых плоскостей под рельсы» (А) и «опорных площадок под колонны» (Б). Конкретные цифры это уже вопрос обсуждения и возможностей станка.
 
Dima_Kaban
Оффлайн
Из:   Москва
В системе:  
Телефон персоны
не подтверждён
1   0
У этой страницы есть короткий адрес: https://dirlot.ru/lot/1759596
Код для вставки ссылки на эту страницу для форумов: [url=https://directlot.ru/lot.php?id=1759596]Нужна услуга: Профрезеровать плоскости на чугунной детали.[/url]

Помощь по системе     Условия использования     Контакт с администрацией